Разработка проекта (конструктивный раздел) для строительства дома.
От Заказчика: пожелания, наброски и т.д. для разработки проекта. Эскизный проект дома приветствуется.
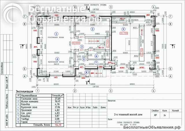
По завершению работ по разработке проекта предоставляются:
1. Комплект рабочих чертежей для строительства дома.
2. Перечень и количество требуемых строительных материалов (спецификация изделий и материалов).
Формат файлов проекта: dvg графический (AutoCad); pdf - для печати.
*На первоначальном этапе совместно с Заказчиком составляется задание на проектирование, с указанием конструкций и материалов, применяемых для строительства дома.
*В процессе: обязательные промежуточные согласования чертежей поэтапно.
Сроки выполнения работ, размер вознаграждения определяются после ознакомления и изучения исходных данных для проектирования дома.
Предоплата.
От Заказчика: пожелания, наброски и т.д. для разработки проекта. Эскизный проект дома приветствуется.
По завершению работ по разработке проекта предоставляются:
1. Комплект рабочих чертежей для строительства дома.
2. Перечень и количество требуемых строительных материалов (спецификация изделий и материалов).
Формат файлов проекта: dvg графический (AutoCad); pdf - для печати.
*На первоначальном этапе совместно с Заказчиком составляется задание на проектирование, с указанием конструкций и материалов, применяемых для строительства дома.
*В процессе: обязательные промежуточные согласования чертежей поэтапно.
Сроки выполнения работ, размер вознаграждения определяются после ознакомления и изучения исходных данных для проектирования дома.
Предоплата.
| Цена: |
70 000 руб
|
| Город: | |
| Тип: | Предлагаю |
| Автор: |
|
Регистрация с 03.02.2025
|
|
| Дата: | 03.02.2025 03:27 |
| Номер: | 2661048 |
Сделать объявление:
Ссылка на это объявление:
Похожие объявления
Профессиональные услуги в области дизайна и разработки
Без цены
31.03.2026
Профессиональный сметчик: составление, расчёт смет, подготовка сопутствующих документов дистанционно
555 руб
12.05.2026
ООО "Геоцентр": геодезические и кадастровые работы в Приозерске
2 000 руб
21.04.2026
Разрешение на строительство РНС
150 000 руб
Вчера
Дизайн нестандартных визиток
2 500 руб
24.04.2026
Декоративная отсыпка устройство в Севастополе
2 500 руб
13.05.2026
Архитектор - проектирование пристроек к частным домам
15 000 руб
Вчера
Выполню ППРк
30 000 руб
Вчера
Готовые проекты домов, коттеджей, дачных и садовых домиков из сип панелей Челябинск
500 руб
12.05.2026
Каркасный дом 9х11,5 одноэтажный с тремя спальнями
Без цены
Вчера
Чертежные работы Autocad, Archicad, Revit, Компас
Без цены
Вчера
Консультации ландшафтного дизайнера
600 руб
13.05.2026
Проектирование электроснабжения квартир, домов
5 000 руб
Вчера
Резиновое покрытие для детских спортивных площадок
1 500 руб
20.04.2026
Дом под ключ: проект, смета, строительство
Без цены
Вчера
Услуги профессионального дизайнера
Без цены
03.05.2026
Проект и строительство двухэтажного каркасного дома 10х8 м
Без цены
Вчера
Узаконение перепланировки, пристройки
10 000 руб
15.05.2026
Услуги графического дизайнера
1 250 руб
14.05.2026
Техническое проектирование
Без цены
31.03.2026
Интерьерный дизайн вашего дома, квартиры
750 руб
16.05.2026
Проектирование в Севастополе
800 руб
13.05.2026
Нивелировка, рихтовка подкрановых путей
100 руб
04.05.2026
Наливные 3д полы, трехмерное изображение
5 500 руб
20.04.2026
Дизайнер (художник конструктор) интерьер и т.д г.Иваново
1 000 руб
01.05.2026
Каркасный дом 160 м2 классической архитектуры - Каркас-58
Без цены
Вчера
Оцифровка и разработка новых чертежей, планов
500 руб
Вчера
Проект ремонта кровли, фасадов
10 000 руб
27.04.2026
Расчет пожарных рисков зданий, помещений и объектов
10 000 руб
19.04.2026
Экспертиза результатов инженерных изысканий
30 000 руб
17.04.2026

Инженер-разработчик, богатый опыт и глубокие знания в области разработки проектов. Предлогаю профессиональные услуги по созданию качественны...