Объявления России Недвижимость Коммерческая недвижимость Аренда коммерческой недвижимости Помещения свободного назначения
Сдается помещение 392 м²
Сдам коммерческое помещение в мкр. Пашенный, ул. Судостроительная, 86 (ЖК "Два капитана")
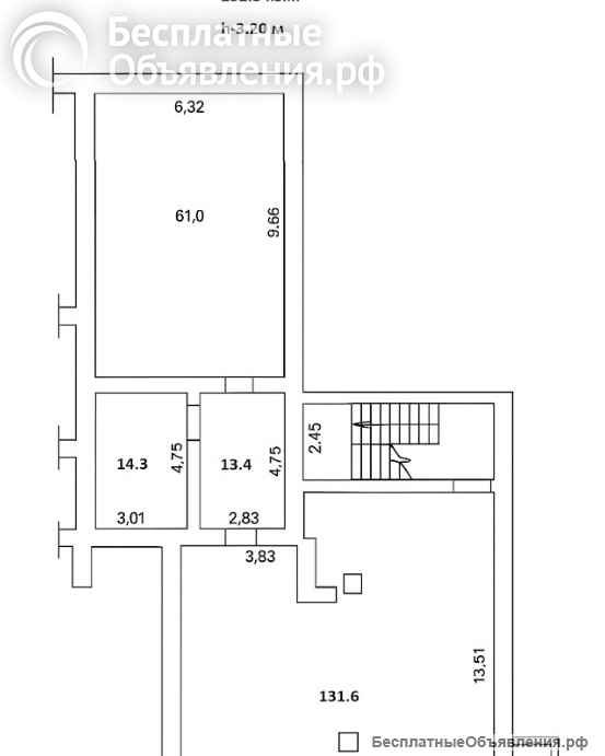
Предлагается в аренду встроенно-пристроенное помещение в густонаселенном жилом районе, с отдельными входами на каждый этаж.
- 1 линия отличная видимость, высокая проходимость
- Район с плотной жилой застройкой
- Подходит под магазин, ПВЗ, фитнес студию или спортзал, аптеку, шоурум
- Кондиционирование, вентиляция, охранно-пожарная сигнализация
- Высокие потолки 3,2м.
- Гибкий формат аренды:
1 этаж 140 м², аренда: 133 000 руб/мес
Цоколь 252,3 м², аренда: 152 000 руб/мес
Рассматриваем только долгосрочную аренду
- По всем вопросам и как посмотреть? Звоните/пишите до 22-00
Предлагается в аренду встроенно-пристроенное помещение в густонаселенном жилом районе, с отдельными входами на каждый этаж.
- 1 линия отличная видимость, высокая проходимость
- Район с плотной жилой застройкой
- Подходит под магазин, ПВЗ, фитнес студию или спортзал, аптеку, шоурум
- Кондиционирование, вентиляция, охранно-пожарная сигнализация
- Высокие потолки 3,2м.
- Гибкий формат аренды:
1 этаж 140 м², аренда: 133 000 руб/мес
Цоколь 252,3 м², аренда: 152 000 руб/мес
Рассматриваем только долгосрочную аренду
- По всем вопросам и как посмотреть? Звоните/пишите до 22-00
Цена: |
285 000 руб
|
Город: | |
Тип: | Сдаю |
Автор: |
|
На сайте с 29.10.2022 ![]() |
|
Дата: | 04.08.2025 17:21 |
Номер: | 2674791 |
Сделать объявление:
Ссылка на это объявление:
Похожие объявления
Сдаю производственную площадь 218 кв.м
600 руб
Вчера
Сдам двухэтажное здание 250м2 под кафе/столовую на 1 линии Московского ш
250 000 руб
18.09.2025
Сдам здание пл. 1903 кв.м., Пятигорск, ул. 295 Стрелковой Дивизии 1а
132 000 руб
02.10.2025
Помещение 25 кв.м на 1 линии, сдам напрямую
40 000 руб
12.09.2025
Помещение общепита в аренду, 120 м2, 1 линия Московского ш
180 000 руб
09.09.2025
Помещение площадью 57 кв.м.
40 000 руб
09.09.2025
Сдается в г. Домодедово открытая площадка, офис
100 руб
06.10.2025
Помещение в аренду 31 м2
35 000 руб
09.09.2025
Помещение 250м2 под кафе, столовую, ресторан. Собственник.
250 000 руб
Вчера
Под мини-кофейню сниму 25-150 м. совместно возможно часть
Без цены
03.10.2025
Помещения в здании поликлиники
400 руб
02.10.2025
Место под козочек и варку сыра
50 000 руб
03.10.2025
Сдам в аренду помещение по ул. Ладожская, 117б 63м по часам
Без цены
Сегодня 01:22
Сдам помещения в Г. Грязи
400 руб
02.10.2025
Помещение свободного назначения 26 кв.м. на 1 линии Московского ш.
46 800 руб
09.09.2025
Перенесите своё производство в более выгодное место
499 000 руб
06.10.2025
Помещение свободного назначения 240м2 на 1 линии Московского ш
288 000 руб
30.09.2025
Аренда помещения/ здания
Без цены
11.09.2025
Сдается в аренду помещение под кафестоловую 120 м2 на Московском ш
180 000 руб
29.09.2025
Помещение 140 м², два зала
133 000 руб
21.09.2025
Аренда торгово-выставочного зала
45 520 руб
07.10.2025
Маленькая ферма в Раменском районе МО
50 000 руб
03.10.2025
Сдам НФ-Дом, 70м2, +уч.3.5 соток, ЛО, Всевол.р-н, д.Юкки, Ленинградское ш, 41, для люб. назначения
60 000 руб
04.10.2025
Сдаю помещение на 1 линии Московского ш. напрямую под офис или магазин
45 000 руб
08.09.2025
Сниму помещение под лофт для мероприяий
Без цены
03.10.2025
Место под банкомат, постомат, вендинг
7 000 руб
01.09.2025
Помещения в аренду под склад, производство, офис
Без цены
02.10.2025
Ангары для производства, склада
250 руб
02.10.2025
Помещения
Без цены
02.10.2025
Аренда помещений
Без цены
02.10.2025
Сдаю производственную площадь 218 кв.м на территории базы по ул.Рябова,1в.Трое ворот,ПВХ-окна,отопление.Возможность сделать второй уровень.Ц...