Объявления России Недвижимость Коммерческая недвижимость Аренда коммерческой недвижимости Помещения свободного назначения
Завершено
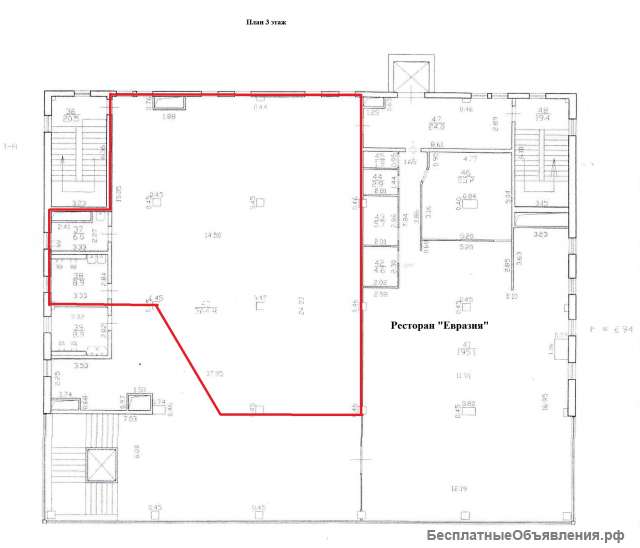
Сдам в аренду помещение в городе Ломоносов 250,0 кв.м
Торговый комплекс расположен в центре города Ломоносов. Численность населения и ближайших к нему населенных пунктов составляет 50000 человек, жители которых преимущественно работают, совершают покупки и проводят досуг в Ломоносове, город насыщен объектами социальной и торговой инфраструктуры. Основным преимуществом ТРК «Рамбов» является его отличное месторасположение. Торговый комплекс расположен в центре города Ломоносов, на пересечении улиц Красноармейской и Победы. В пешеходной доступности детская и взрослая поликлиники, школа искусств, многофункциональный центр, библиотека, а так же городская центральная площадь с фонтаном, где проводятся городские мероприятия. В нескольких метрах от ТРК расп оложена остановка общественного транспорта. Субъякорными и якорными арендаторами выступают:
- супермаркет «РЕАЛЪ» (единственный в Ломоносове)
- ресторан «Евразия» (единственный в Ломоносове)
- магазин «Магнит-Косметик»
- магазин детских товаров «Лимпопо»
Большие транспортные потоки и пешеходный трафик обеспечат для Вас постоянный поток клиентов.
В здании подключено: центральное отопление, вода, канализация, электричество, панорамный лифт, приточно-вытяжная вентиляция и кондиционирование, грузовой лифт
- супермаркет «РЕАЛЪ» (единственный в Ломоносове)
- ресторан «Евразия» (единственный в Ломоносове)
- магазин «Магнит-Косметик»
- магазин детских товаров «Лимпопо»
Большие транспортные потоки и пешеходный трафик обеспечат для Вас постоянный поток клиентов.
В здании подключено: центральное отопление, вода, канализация, электричество, панорамный лифт, приточно-вытяжная вентиляция и кондиционирование, грузовой лифт
| Цена: |
275 000 руб
|
| Город: | |
| Тип: | Сдаю |
| Автор: |
|
На сайте с 24.01.2018
|
|
| Дата: | 13.02.2023 11:02 |
| Номер: | 2313862 |
Сделать объявление:
Ссылка на это объявление:
Местоположение
| Адрес: | Россия, Санкт-Петербург, Ломоносов, Красноармейская улица, 19 |
| GPS: | 59.907465, 29.775244 |
Похожие объявления
Сдаю производственную площадь 218 кв.м
600 руб
Вчера
В аренду помещение
Без цены
16.01.2026
Сдам помещение в самом Центре, 52 м²
57 000 руб
25.11.2025
Сдаю помещение свободного назначения
75 000 руб
25.11.2025
Сдам НФ-Дом, 70м2, +уч.3.5 соток, ЛО, Всевол.р-н, д.Юкки, Ленинградское ш, 41, для люб. назначения
60 000 руб
28.11.2025
Помещение свободного назначения от 100 м.кв. Золотая точка Омска Спрос гарантирован местоположением.
220 000 руб
24.11.2025
Место под козочек и варку сыра
50 000 руб
12.01.2026
Сдается в г. Домодедово открытая площадка, офис
100 руб
22.01.2026
Сдаётся помещение в центре Обнинска. Отдельный вход
30 000 руб
20.12.2025
Аренда гаражных боксов для хранения с жилым зданием 209 км а/д Лидога-Ванино
Без цены
17.11.2025
Под мини-кофейню сниму 25-150 м. совместно возможно часть
Без цены
12.01.2026
Помещение под столовую, пекарню, доставку еды, общ.250 м2
250 000 руб
26.11.2025
Помещение свободного назначения 140м2 на Московском шоссе
140 000 руб
06.11.2025
Помещение 140 м², два зала
133 000 руб
25.01.2026
Сдам в аренду помещение под разведение свиней и так далее
Без цены
16.01.2026
Аренда торгово-выставочного зала
45 520 руб
21.11.2025
Универсальное нежилое помещение на 1-й Никитинской улице сдается в аренду
290 000 руб
30.01.2026
Помещения в здании поликлиники
400 руб
22.01.2026
Сдам в аренду помещение по ул. Ладожская, 117б 63м по часам
Без цены
Вчера
Помещение под кафе на трассе, 120м2, от собств-ка
108 000 руб
19.11.2025
Свободного назначения, 16м2
16 000 руб
07.11.2025
Сдаю в долгосрочную аренду помещение по ул. Ладожская
60 000 руб
Вчера
Помещение под столовую на трассе 250 м2 от собственника
250 000 руб
31.10.2025
Аренда помещения
100 руб
16.01.2026
Сдам здание пл. 1903 кв.м., Пятигорск, ул. 295 Стрелковой Дивизии 1а
132 000 руб
14.11.2025
Аренда | Производственное помещение
400 000 руб
19.01.2026
Ангары для производства, склада
250 руб
19.01.2026
Добрый день, аренда оборудонного места
4 000 руб
27.10.2025
Площадь 150м2 под кухню, цех пищевого производства
225 000 руб
04.12.2025
Сниму помещение под лофт для мероприяий
Без цены
12.01.2026

Сдаю производственную площадь 218 кв.м на территории базы по ул.Рябова,1в.Трое ворот,ПВХ-окна,отопление.Возможность сделать второй уровень.Ц...