Танк-контейнер объём 25м3 тип Т3, для перевозки и хранения мазута, битума, новый
Цена может быть не актуальной из-за нестабильности курса валюты, пожалуйста уточняйте!
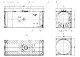
Технические характеристики
Тип танка Стандартный 20-фут танк-контейнер, полнокаркасная рама, тип UN Portable Tank T3,
с изоляцией и подогревом.
Размеры рамы длина 20 (6058°-6 )
ширина 8 (2438°-5 )
высота 8 6 (2591°-5 )
Расстояние между центрами отверстий угловых фитингов, мм по длине 5853±4'5
по ширине 2259±4
Емкость 25000 литров (±2%)
Общая емкость (за вычетом внутренних нагревательных труб) 23750 литров (±2%)
Максимальная масса брутто 30600 кг
Собственная масса контейнера (тара) 5400 кг +/- 5%
Технически допустимая полная масса 36000 кг
Рабочее давление 0.9 Бар/0.09 МПа
Расчётное давление 1.77 Бар/0.177 МПа
Испытательное давление 2.65 Бар/0.265 МПа
Рабочая температура перевозимого продукта до +2000C
Расчетная температура-400C to +2500C
Материал сосуда SA516GR70 (сталь конструкционная низколегированная)
Толщина оболочки 6 мм
Толщина днищ 6 мм после формовки
Допуск на коррозию 1 мм (макс.)
Материал рамы GB/T 1591-94-Q345D (Низколегированная высокопрочная конструкционная сталь)
Угловые фиттинги 8 ед.
Перевозимый груз Битум
Штабелирование В высоту 6ед.
Фурнитура и аксессуары
1. Люк-лаз 1 люк-лаз диаметром 500мм с загрузочным/смотровым люком, предохранительным клапаном и клапаном воздушной (газовой) магистрали
2. Узел предохранительного клапана предохранительный клапан DN65 без пламепрерывающей сетки
3. Клапан воздушной (газовой) магистрали шаровой клапан воздушной (газовой) магистрали с заглушкой
4. Узел нижнего сливного устройства DN80 задвижка, оканчивающаяся резьбовым соединителем 3 BSP и крышкой
5. Арматурный отсек 1 верхний короб обеспечивающих защиту от пролива продукта
Отсек содержит:
люк-лаз с загрузочным/смотровым люком, предохранительным клапаном и клапаном воздушной (газовой) магистрали
6. Система подогрева Сдвоенные нагревательные трубы будут установлены в задней части, а выхлопные трубы - в верхней задней части.
Входные фланцы DN200 для крепления горелки, чтобы можно было установить собственное отопительное оборудование заказчика.
7. Изоляция Резервуар изолирован минеральной ватой толщиной 80 мм. Торцы резервуаров изолированы минеральной ватой.
Внешняя облицовка - лист из углеродистой стали
8. Термометр 1 шт., диапазон измерения от-40 °C до 300 °C,контактный тип, установлен в левой задней части.
9. Площадки обслуживания Состоят из трапов с настилом из просечно-вытяжного листа шириной 475мм
10. Лестница Стальная, противоскользящая
Расположена справа сзади
11. Заземление На нижней поперечной балке задней торцевой рамы установлены пластина и винт для подсоединения кабеля заземления контейнера.
12. Пенал для документов Пластиковый тубус в задней части справа
13. Таблица с данными Совместные данные в соответствии с кодом изделия
14. Внутренняя обработка емкости Продольные и круговые сварные швы, стяжки опорных кронштейнов после сварки огрунтованы и отполированы
Вся внутренняя поверхность химически очищается после завершения всех сварных и монтажных операций
15. Внешняя обработка Внешняя поверхность резервуара очищается после завершения всех сварочных и испытаний.
ТОЛЬКО ПРОДАЖА!!! В АРЕНДУ НЕ СДАЁМ!!! ТОЛЬКО НОВЫЕ, Б/У НЕ ТОРГУЕМ!!!
Технические характеристики
Тип танка Стандартный 20-фут танк-контейнер, полнокаркасная рама, тип UN Portable Tank T3,
с изоляцией и подогревом.
Размеры рамы длина 20 (6058°-6 )
ширина 8 (2438°-5 )
высота 8 6 (2591°-5 )
Расстояние между центрами отверстий угловых фитингов, мм по длине 5853±4'5
по ширине 2259±4
Емкость 25000 литров (±2%)
Общая емкость (за вычетом внутренних нагревательных труб) 23750 литров (±2%)
Максимальная масса брутто 30600 кг
Собственная масса контейнера (тара) 5400 кг +/- 5%
Технически допустимая полная масса 36000 кг
Рабочее давление 0.9 Бар/0.09 МПа
Расчётное давление 1.77 Бар/0.177 МПа
Испытательное давление 2.65 Бар/0.265 МПа
Рабочая температура перевозимого продукта до +2000C
Расчетная температура-400C to +2500C
Материал сосуда SA516GR70 (сталь конструкционная низколегированная)
Толщина оболочки 6 мм
Толщина днищ 6 мм после формовки
Допуск на коррозию 1 мм (макс.)
Материал рамы GB/T 1591-94-Q345D (Низколегированная высокопрочная конструкционная сталь)
Угловые фиттинги 8 ед.
Перевозимый груз Битум
Штабелирование В высоту 6ед.
Фурнитура и аксессуары
1. Люк-лаз 1 люк-лаз диаметром 500мм с загрузочным/смотровым люком, предохранительным клапаном и клапаном воздушной (газовой) магистрали
2. Узел предохранительного клапана предохранительный клапан DN65 без пламепрерывающей сетки
3. Клапан воздушной (газовой) магистрали шаровой клапан воздушной (газовой) магистрали с заглушкой
4. Узел нижнего сливного устройства DN80 задвижка, оканчивающаяся резьбовым соединителем 3 BSP и крышкой
5. Арматурный отсек 1 верхний короб обеспечивающих защиту от пролива продукта
Отсек содержит:
люк-лаз с загрузочным/смотровым люком, предохранительным клапаном и клапаном воздушной (газовой) магистрали
6. Система подогрева Сдвоенные нагревательные трубы будут установлены в задней части, а выхлопные трубы - в верхней задней части.
Входные фланцы DN200 для крепления горелки, чтобы можно было установить собственное отопительное оборудование заказчика.
7. Изоляция Резервуар изолирован минеральной ватой толщиной 80 мм. Торцы резервуаров изолированы минеральной ватой.
Внешняя облицовка - лист из углеродистой стали
8. Термометр 1 шт., диапазон измерения от-40 °C до 300 °C,контактный тип, установлен в левой задней части.
9. Площадки обслуживания Состоят из трапов с настилом из просечно-вытяжного листа шириной 475мм
10. Лестница Стальная, противоскользящая
Расположена справа сзади
11. Заземление На нижней поперечной балке задней торцевой рамы установлены пластина и винт для подсоединения кабеля заземления контейнера.
12. Пенал для документов Пластиковый тубус в задней части справа
13. Таблица с данными Совместные данные в соответствии с кодом изделия
14. Внутренняя обработка емкости Продольные и круговые сварные швы, стяжки опорных кронштейнов после сварки огрунтованы и отполированы
Вся внутренняя поверхность химически очищается после завершения всех сварных и монтажных операций
15. Внешняя обработка Внешняя поверхность резервуара очищается после завершения всех сварочных и испытаний.
ТОЛЬКО ПРОДАЖА!!! В АРЕНДУ НЕ СДАЁМ!!! ТОЛЬКО НОВЫЕ, Б/У НЕ ТОРГУЕМ!!!
| Цена: |
2 850 000 руб
|
| Город: | |
| Тип: | Продаю |
| Автор: |
|
Регистрация с 18.03.2026
|
|
| Сайт: | gts-dv.ru |
| Дата: | 22.04.2026 09:20 |
| Номер: | 2688829 |
Сделать объявление:
Ссылка на это объявление:
Похожие объявления
Гаминатор новоматик FV801 продаю
150 000 руб
Сегодня 19:12
Куплю рентгеновскую пленку техническую Кодак, Агфа
Без цены
Сегодня 19:12
Капролон лист желтый
180 руб
Сегодня 22:33
Куплю продам радиографическую - рентгеновскую пленку Агфа - Agfa – D - 7; F - 8. Кодак - Kodak - A
Без цены
Сегодня 19:12
Куплю рентген пленку Agfa F-8 Kodak HS-800
Без цены
Сегодня 19:12
Легендарный Gaminator VF610
950 000 руб
Сегодня 19:12
Куплю продам рентгеновскую пленку AGFA - D-7; F-8. Kodak - AA-400
Без цены
Сегодня 19:12
Игровые автоматы бывшие в употребление
45 000 руб
Сегодня 19:12
Автоматы Гейминатор 623
45 000 руб
Сегодня 19:12
Паронит
Без цены
Сегодня 22:33
Винипласт лист
160 руб
Сегодня 22:33
Куплю продам рентген. пленку промышленную Kodak или Agfa Ф-8
Без цены
Сегодня 19:13
Капролон стержень
220 руб
Сегодня 22:33
Куплю продам рентгеновскую пленку Агфа - D-7; F-8. Кодак - AA-400 Экраны
Без цены
Сегодня 19:12
Трубка ТКСП 6 мм
111 руб
Сегодня 22:33
Резервуар 100 м3 для воды, гсм, пищевых продуктов в Таганроге, Ростове-на-Дону, Краснодаре, Воронеже
677 000 руб
Сегодня 20:28
Куплю рентгеновскую радиографическую пленку Agfa. Kodak
Без цены
Сегодня 19:13
Брезент тенты
Без цены
Сегодня 22:33
Гаминатор новоматик 629 продаю
200 000 руб
Сегодня 19:12
Куплю продам рентген. пленку Агфа Agfa F-8. Kodak
Без цены
Сегодня 19:12
Куплю продам рентгеновскую пленку Agfa – D-7; F-8. Kodak -AA-400
Без цены
Сегодня 19:12
Эбонит в ассортименте
Без цены
Сегодня 22:33
Куплю рентген пленку Agfa F-8, D-7 Kodak HS-800, AA-400
Без цены
Сегодня 19:13
Винипласт в ассортименте
Без цены
Сегодня 22:33
Куплю продам рентгеновскую пленку Агфа - Agfa – D-7; F-8. Kodak -AA-400
Без цены
Сегодня 19:13
Гаминатор FV834
2 000 000 руб
Сегодня 19:12
Игровые слот-автоматы egt оригинальные
Без цены
Сегодня 19:12
Куплю продам радиографическую пленку Агфа Agfa F-8. Kodak HS 800
Без цены
Сегодня 19:14
Водонапорная башня 25 м3 - в Таганроге, Ростове-на-Дону, Краснодаре, Воронеже, Ставрополе, Туле
500 000 руб
Сегодня 20:28
Куплю рентген пленку Агфа Agfa F-8 Kodak HS 800
Без цены
Сегодня 19:13

В продаже гаминатор новоматик FV801,из РБ, в отличном состоянии,30-40 игр, миксы 45,60,61,64,63 89969759322 телеграм отправка ТК. Самовывоз ...